PRODUCTS 製品情報

ガラスドア

製品の特長

  • 見付18mmのスリムなタテフレームでフロントをシャープに演出します。
  • 標準でご用意しています5色のバリエーションからお選びいただけ、枠色とのコーディネイトが可能です。
  • 強化ガラスを標準でセットし、安全面にも強度面にも優れ、安心です。
  • 四方にエアタイトパーツを装備し、省エネルギー効果とともに防音、防塵効果も得られます。
  • タテフレームによりガラスエッジを保護することにより、6mm、8mmのガラスも使用可。軽量化に実現しています。

製品の効果

  • 強度×3 イメージ画像

    強度×3

    強度×3 イメージ画像

    強度×3

    フロートガラスの3倍から5倍程度の強度
  • 安全細粒片 イメージ画像

    安全細粒片

    安全細粒片 イメージ画像

    安全細粒片

    ガラスが破損した際、細かい粒状になります
  • デザイン性 イメージ画像

    デザイン性

    デザイン性 イメージ画像

    デザイン性

    ドッド、グリッド、ストライプの基本デザイン以外に お客様の要望に応じた意匠性を実現します

製品の用途

建物

  • ショッピングモール イメージ画像

    ショッピングモール

  • 病院 イメージ画像

    病院

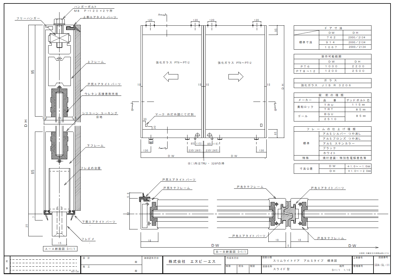
製品スペック

標準仕様

フレーム

上  見付95mm / 見込29mm
下  見付85mm / 見込29mm
タテ 見付18mm / 見込32mm

仕上げ

アルミシルバー・ステンカラー
ブラック・ホワイト
アルミブロンズ

ガラス

強化ガラス 6mm〜12mm厚 透明・熱線吸収

エアタイトパーツ

戸先・戸尻・上部・下部

ハンガー

移動式 M8 P=120
2ヶ所 4点吊
(各メーカーエンジンに対応)

フレドメ

白樹脂 2ヶ所

錠前

美和 / TRU・TRT
ゴール / BGU・2510
ショウワ / 326・326F

オプション

仕上げ

焼付塗装
特別色電解着色
マット処理

ガラス

飛散防止フィルム貼
タペストリー加工・耐熱強化ガラス
強化合わせガラス

フレドメ

防犯アングル取付
偏芯位置セット
床付けローラー用チャンネル取付
ドアガイド用面落補助プレート

※最大サイズ DW1,200 × DH2,500

パーツオプション

オススメオプション

  • 防犯アングル取付 カラー画像

    防犯アングル取付

    入室コントロール付のマンションなどに、いたずら防止や防犯のアイテムです。
    防犯アングル取付 カラー画像

    防犯アングル取付

    入室コントロール付のマンションなどに、いたずら防止や防犯のアイテムです。

TOP